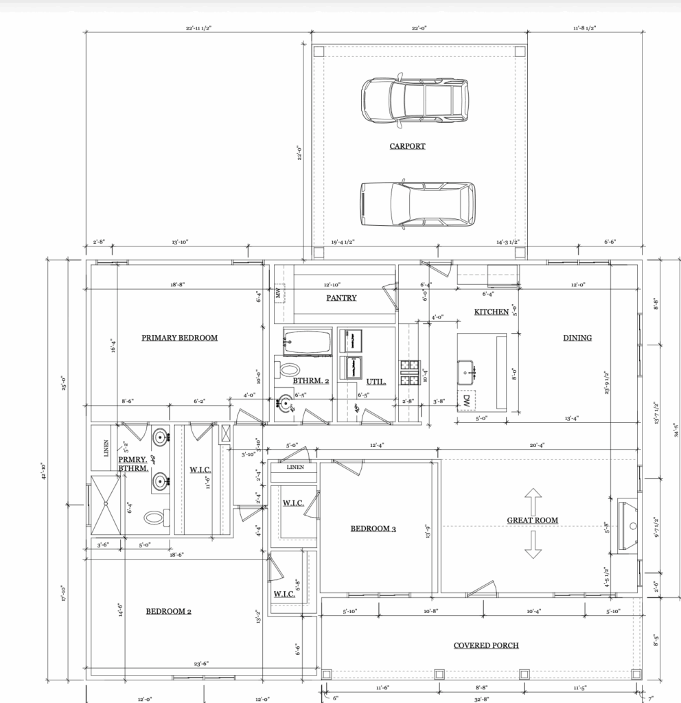
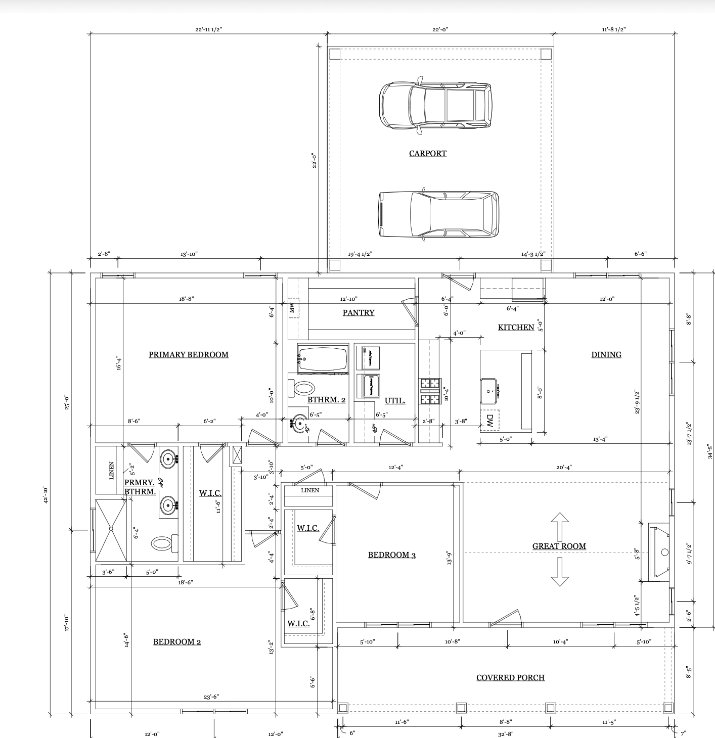
115 Emporor Ln (Lot 17) Greeneville, TN